Les Jardins du Manoir
Historique du site ▹
Nous contacter
Les Jardins du Manoir
6 Lots – PLOUAY (56240)
Localisation du projet
Située à une quinzaine de kilomètre au Nord de Lorient, la commune de Plouay, est une petite ville dynamique, disposant de toutes les commodités, elle est connue pour son cadre rural, ses paysages verdoyants et son patrimoine Breton.
Membre de la Communauté de Communes de Lorient Agglomération, la commune s’étend sur une superficie de 67,46 km², pour une population d’environ 5 800 habitants en 2025.
Elle est également connue pour accueillir chaque année le Grand Prix de PLOUAY, une course cycliste internationale.
Vie Pratique :
- La ville de Lorient à environ 20 minutes
- 30 minutes des plages
- Ecoles Maternelles, Primaires et Collèges
- Proche des équipements culturels et sportifs
- Nombreux services de proximité : supermarchés ; pharmacie ; boulangeries ; restaurants ; coiffeurs ; médecins ; …
- Transports en commun vers Lorient
Descriptif projet
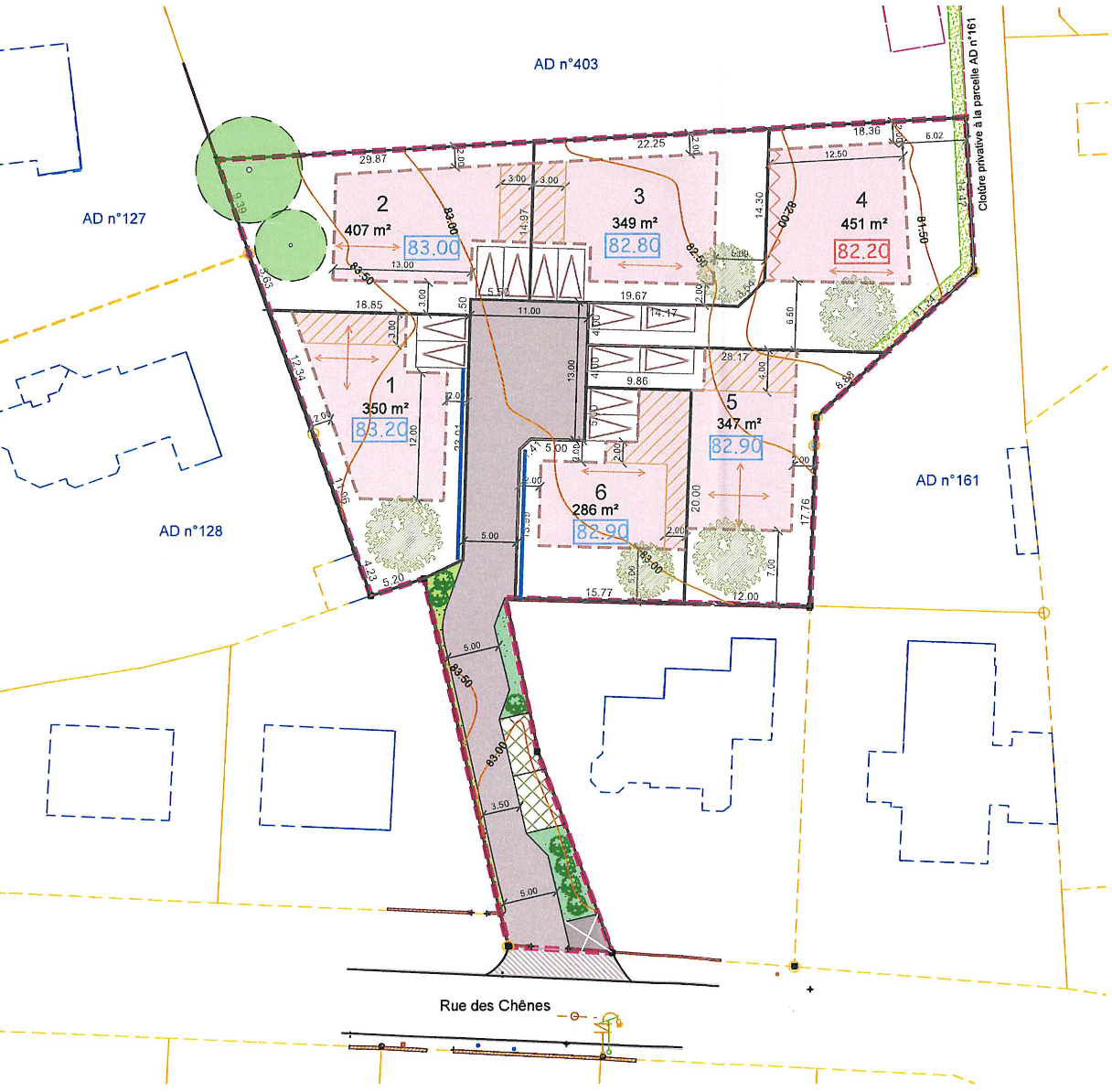
Le projet se situe au Sud-Ouest du bourg de la commune de Plouay, dans un quartier pavillonnaire, à proximité immédiate de toutes les commodités et d’un supermarché. Le terrain est desservi par la Rue des Chênes au Sud.
La surface d’emprise du lotissement est de 2 671 m².
Le projet porte sur la création de 6 lots destinés à de l’habitat. Les lots auront des surfaces variant de 286 à 451 m².
L’opération sera organisée autour d’une voie en impasse desservant l’ensemble des lots via une placette centrale.
Historique du site
Permis d’aménager
Permis d’Aménager obtenu le 26 janvier 2026.
Avancement projet
Démarrage prévisionnel des travaux de viabilisation de 1ère phase, Juin 2026.
Contactez-nous
Prenez contact avec nous pour tous renseignements complémentaires sur nos programmes ou pour échanger sur votre projet.








